
VisualCircuit provides facility to maintain mounting codes for each control item. This is used for two purposes:
Provide the mounting information to drafter at the time of additional to work order schematic
Determine the mounting items like hardware etc for the panel.
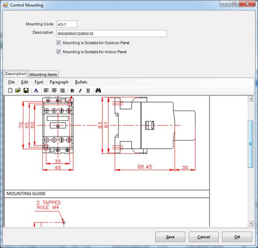
Mounting Guide can be edited from the control item screen using the “Mounting Guide” Tab. If you edit/add a code, following screen is presented:

A unique mounting code is given with a description. This mounting code is printed with the material list.
The description is a RTF field for describing with nice formatting about the overall dimensions and the mounting dimensions for this mounting code.

In the mounting items tab, you can select hardware and other items required for this mounting code and enter quantity.
Please check your uploaded file extension.
Please Select a file.